- Vi falt begge for Høgflya og dens særpreg, i tillegg var det perfekt med tanke på utnyttelse av areal og størrelse, sier Siren Johannessen.
Sammen med mannen Johannes, og deres to små barn, Jonah (5) og Liam (2), ønsket de å bygge drømmehuset som kunne gjøre hverdagen med to små barn enklere.
Familien bodde i en leilighet i Oslo, hvor de trivdes godt, men likevel var det noe som trakk dem mot hjemlige trakter.
- Vi visste vel egentlig hele tiden at det ikke var der, midt i storbyen, at vi ønsket å slå oss til ro som familie. Og ettersom eldstemann nærmet seg skolestart, fant vi ut at det var en god timing å finne oss et annet sted, forklarer Siren.
Siden både Siren og Johannes begge opprinnelig er fra Bømlo, ble de veldig interessert når de fikk mulighet til å kjøpe en tomt i et nytt byggefelt i Mosterhamn.
- Her kunne barna få en god oppvekst med barnehage, skole, skog og sjø like i nabolaget. I tillegg er både besteforeldre og resten av storfamilien også nærmere. Større plass med hus og hage var selvfølgelig også et stort pluss, sier Siren.
Det tok heller ikke lang tid før VestlandsHus sin husmodell Høgflya utpekte seg som en favoritt.
- Vi kikket på hus fra ulike leverandører, men kom stadig tilbake til Høgflya-huset i VestlandsHus-katalogen, som krysset av på svært mange av punktene vi ønsket oss tidlig, sier Siren.
Les også: På jakt etter drømmehuset? Sjekk ut VestlandsHus sin nye huskolleksjon med nordiske hus
Egenskapene som appellerte til familien var blant annet det store oppholdsrommet med god takhøyde og store vinduer som gir mye lysinnslipp. Det at det var en lukket og skjermet soveromsavdeling i første etasje med en ekstra stue, var også et stort pluss.

Siden familien bodde i Oslo under byggingen, var de også avhengig av å finne en utbygger de hadde god dialog med, siden de ikke kunne følge byggeprosessen så tett som de ønsket. Det fant de hos VestlandsHus.
- Vi har hatt en ryddig og fin prosess med Bømlo Hus, med Nils Eirik Ådnanes i spissen, som har fulgt oss godt opp fra start til slutt, forteller Johannes.

Nå bor familien Johannessen i sitt nye hjem på Bømlo. Med moderne design, smarte funksjoner og tilpassede løsninger, har dette huset blitt det perfekte hjemmet for deres familie på fire.
- Vi ønsket oss både et litt større hovedbad og vaskerom og valgte derfor å bygge ut disse to rommene. Dette gjorde at vi fikk god plass til badekar, som jo er fint å ha når man har småbarn. Samtidig er det fint å ha et litt større vaskerom i denne småbarnsfasen, med både mye klesvask og mulighet til egen inngang, forklarer Siren.

Les også: 5 tips for et innholdsrikt og praktisk vaskerom
Både store og små i familien trives aller best i det store oppholdsrommet i andre etasje, hvor det er åpen løsning mellom stue og kjøkken.
- Her er det god plass til matlaging, besøk og aktive småbarn. Barna elsker også å leke her, og det er god plass til å ta med seg venner hjem og være sammen med hele familien, sier Johannes.

Innvendig har de valgt å gå for sorte detaljer i alle rom.
- Dører, vinduer, stikkontakter, lysbrytere, trapp, kjøkken, bad, samt andre detaljer er i sort. Vi synes dette gir en fin og moderne helhet i huset, sier Siren.
Familien har også valgt flere smarthus-løsninger for blant annet varmekabler og varmepumpe, samt kodelås på ytterdøren. Dette gir en nøkkelfri hverdag og enkel styring av oppvarming fra telefonen.
- Vi har også valgt sensorlamper på vaskerom og i boder, som er praktisk da dette er rom hvor vi ofte kommer inn med hendene fulle, sier Johannes.

Fra oppholdsrommet i andre etasje kan de gå rett ut på en romslig terrasse og nyte varme sommerdager. Terrassen sørger også for tett overbygg for uteplassen på bakkeplan, noe som gir flere muligheter. Her kan de finne ly for regnet, skygge på varme sommerdager eller mulighet for å eventuelt bygge seg en flott vinterhage.

En annen endring som ble gjort, var å gjøre om boden til walk in-closet. Og siden Siren og Johannes valgte å bruke den eneste boden i huset til walk-in-closet, måtte de finne på noe lurt for å få mer oppbevaringsplass.
- Vi prioriterte derfor å bygge garasje samtidig som vi bygde huset. Garasjen inneholder to isolerte boder som har kommet veldig godt med. Vi har bygget den i samme stil som huset, noe vi synes gir en helhet og harmoni, sier Siren.

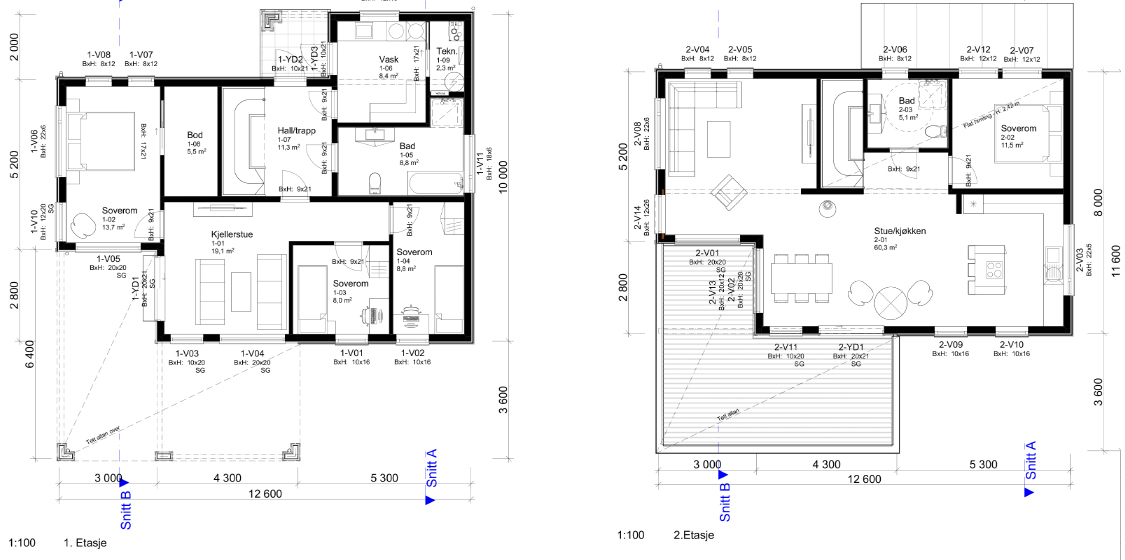
Slik ble planløsningen av Siren og Johannes sin versjon av Høgflya.
For å gi huset et unikt preg og en moderne touch, bestemte de seg også for å bytte ut platene på fasaden med liggende kledning.
- Vi syns dette ble en fin kontrast til den stående kledningen som er på deler av huset. All kledning er vedlikeholdsvennlig kledning fra NORD, noe vi er veldig fornøyd med, sier Siren.

På spørsmål om hva de ville gjort annerledes om de skulle startet byggeprosessen på nytt, svarer Siren og Johannes følgende:
- Vi er godt fornøyd med hjemmet vårt, men det er selvsagt enkelte småting vi i ettertid har tenkt vi kunne ha gjort annerledes. Et eksempel er at vi som har et hus med så stor takhøyde og store vindusflater burde tenkt mer på akustikktiltak.
Men de er raske med å legge til:
- Men slik er vi vel alle, at vi bruker mer energi på småting vi er misfornøyd med, fremfor å se på alt vi faktisk er fornøyd med. Det er i vårt tilfelle stort sett alt.
Syns du det er mye å tenke på når du skal planlegge ditt drømmehjem? På nettsiden vår har vi mange gode tips og råd: